Global leader with young minds
EUNSUNG Engineering continues to challenge greater ambitions towards the world for a better tomorrow.
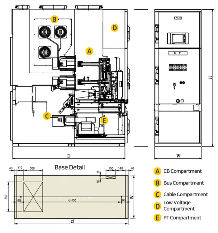
The metal-clad switchgear (MCSG) of EUNSUNG Engineering Co., Ltd. has undergone full-type tests including the internal arc classification test for IEC 62271-200 specifications.
The product will greatly reduce the installation area to suit our customers who put safety first, such as power plants (hydraulic, thermal cogeneration), industrial plants (semiconductors, petrochemicals, steel-making), and social overhead capital facilities (subways, railroads, and airports).
MCSG, which has the best protection grade among air insulated closed switchgears, ensures that explosions during an internal arc accident do not affect the surrounding equipment.
EUNSUNG Engineering carries out comprehensive preventive and preservation activities through continuous maintenance and inspection and prediction of remaining life. The extra-high tension, metal-clad switchgear of EUNSUNG Engineering offers such convenience in maintenance and inspection.
Digital switchgear that has employed the digital power protection monitoring device allows data to be linked to the remote monitoring and control system



MCSG implements anti-seismic suitability through anti-seismic analysis and structural design suitable for a seismic environment through dynamic analysis, and the company produces and supplies switchgears with anti-seismic features that satisfy various specifications.
| Section | Contents | |
|---|---|---|
| Rated Current | 630/1250A | |
| Rated Frequency | 60Hz | |
| Rated Interrupting | 25kA/3sec | |
| Internal Arc Test | 25kA/1sec | |
| Rated Insulation Level |
Power frequency withstand voltage (Power Frequency) |
60kV/1min |
|
Impulse withstand voltage (1.2 x 50㎲) |
125kV | |
| Degree of Protection | IP 42 | |
| Loss of Service Continuty and Partition class | LSC2B-PM | |
| Accessibility and Internal Arc Classification | AFLR | |
| Seismic rating under the technical standards for safety and reliability of telecommunication facilities | 7Grade | |
| Section | Contents | |
|---|---|---|
| Rated Current | 630/1250/2000A | |
| Rated Frequency | 60Hz | |
| Rated Interrupting | 25kA/3sec | |
| Internal Arc Test | 25kA/1sec | |
| Rated Insulation Level |
Power frequency withstand voltage (Power Frequency) |
20kV/1min |
|
Impulse withstand voltage (1.2 x 50㎲) |
60kV | |
| Degree of Protection | IP 42 | |
| Loss of Service Continuty and Partition class | LSC2B-PM | |
| Accessibility and Internal Arc Classification | AFLR | |
| Seismic rating under the technical standards for safety and reliability of telecommunication facilities | 7Grade | |

| Residual capacity | Wide | Depth | Height |
|---|---|---|---|
| 630A | 800 | 2,000 | 2,350 |
| 1,250A |
Note) Width and depth may vary by system

| Residual capacity | Wide | Depth | Height |
|---|---|---|---|
| 630A | 700 | 2,200 | 2,450 |
| 1,250A | |||
| 2,000A |
Note) Width and depth may vary by system